APARTAMENT

Apartament Sunrise A.2

[titlu_single_apartments]
[price_single_ap]

Suprafețe

Scara: A

Etaj: 1-10

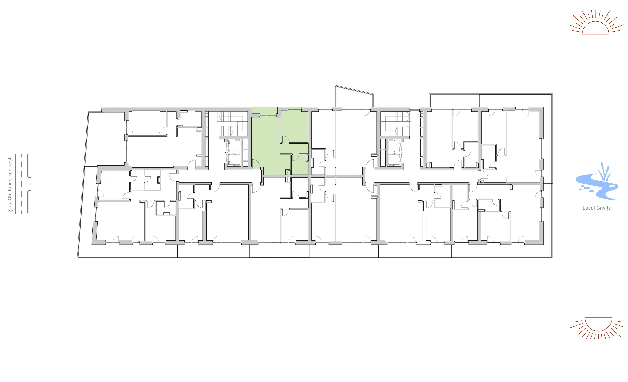
Suprafață locuință 56.06 m2

Suprafață construită 58.21 m2

Living + Bucătărie 24.89 m2

Dormitor 12.29 m2

Baie 4.60 m2

Hol 4.06 m2

Suprafață utilă 45.84 m2

Balcon 2.15 m2

Suprafață utilă totală 47.99 m2

Plan Apartament Sunrise A.2

Disponibilitați

Tip

Etaj

Disponibilitate

Apartament Sunrise A.2 Etaj 1 Vândut

Apartament Sunrise A.2 Etaj 2 Vândut

Apartament Sunrise A.2 Etaj 3 Vândut

Apartament Sunrise A.2 Etaj 4 Vândut

Apartament Sunrise A.2 Etaj 5 Vândut

Apartament Sunrise A.2 Etaj 6 Vândut

Apartament Sunrise A.2 Etaj 7 Vândut

Apartament Sunrise A.2 Etaj 8 Vândut

Apartament Sunrise A.2 Etaj 9 Disponibil

Apartament Sunrise A.2 Etaj 10 Disponibil

Localizare pe etaj Apartament Sunrise A.2

Localizare în proiect Apartament Sunrise A.2

Explorați și alte tipuri de apartamente similare

Apartament Sunrise B.2

Suprafață utilă totală: 48.50 - 50.63m2

Apartament Sunset A.3

Suprafață utilă totală: 57.98 - 59.22 m2

Stabilește
o vizionare!